Render 08

Newbuilt under construction Aquaculture Service Vessel.
Built primarily for the Norwegian market under the Nordic Boats Standards (NBS), this versatile and stable platform is very well suited for fish farms and construction works.
Delivery time within 6 months after contract signing. Since vessel is hull-ready, variations in its outfitting are still possible.

MORE INFO
Reference SSB 1037
Price Enquire for prices
Built 2024 (NEWBUILD)
Length (m) 14.95 m.
Bollard pull n/a

Full specifications

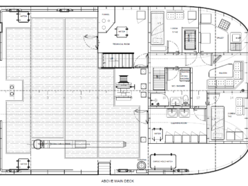
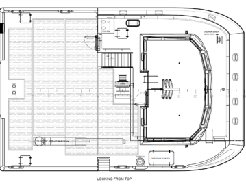
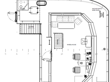
Type – AQUACULTURE SERVICE VESSEL
Built – 2024 (NEWBUILD)
Dimensions – 14.95 x 10.00 x 3.40 m.
Draft – 1.60 m. max
Material – steel hull / aluminium superstructure
Propulsion – 2x fixed-pitch propellers
Main engines – 2x Doosan (alternative options avialable)
Speed – 10 knots
Generator sets – 1x 77 kW (230/440VAC, 50 Hz, 24VDC)
Battery set – yes, hotel + start batteries
Propellers – 2x 4-blade
Bowthruster – 1x 50 hp
Fuel oil – 6.4 m3
Fresh water – 6.4 m3
Lightship – 65 tonnes
DWT at max draft – 35 tonnes
Crew capacity – 5 crew bunks
Class – NBS (under DNV-GL)
Position – East MED
DOWNLOAD SPECSHEET

Contact us